4683 Twain Ave, San Diego, CA 92120
4683 Twain Ave, San Diego, CA 92120
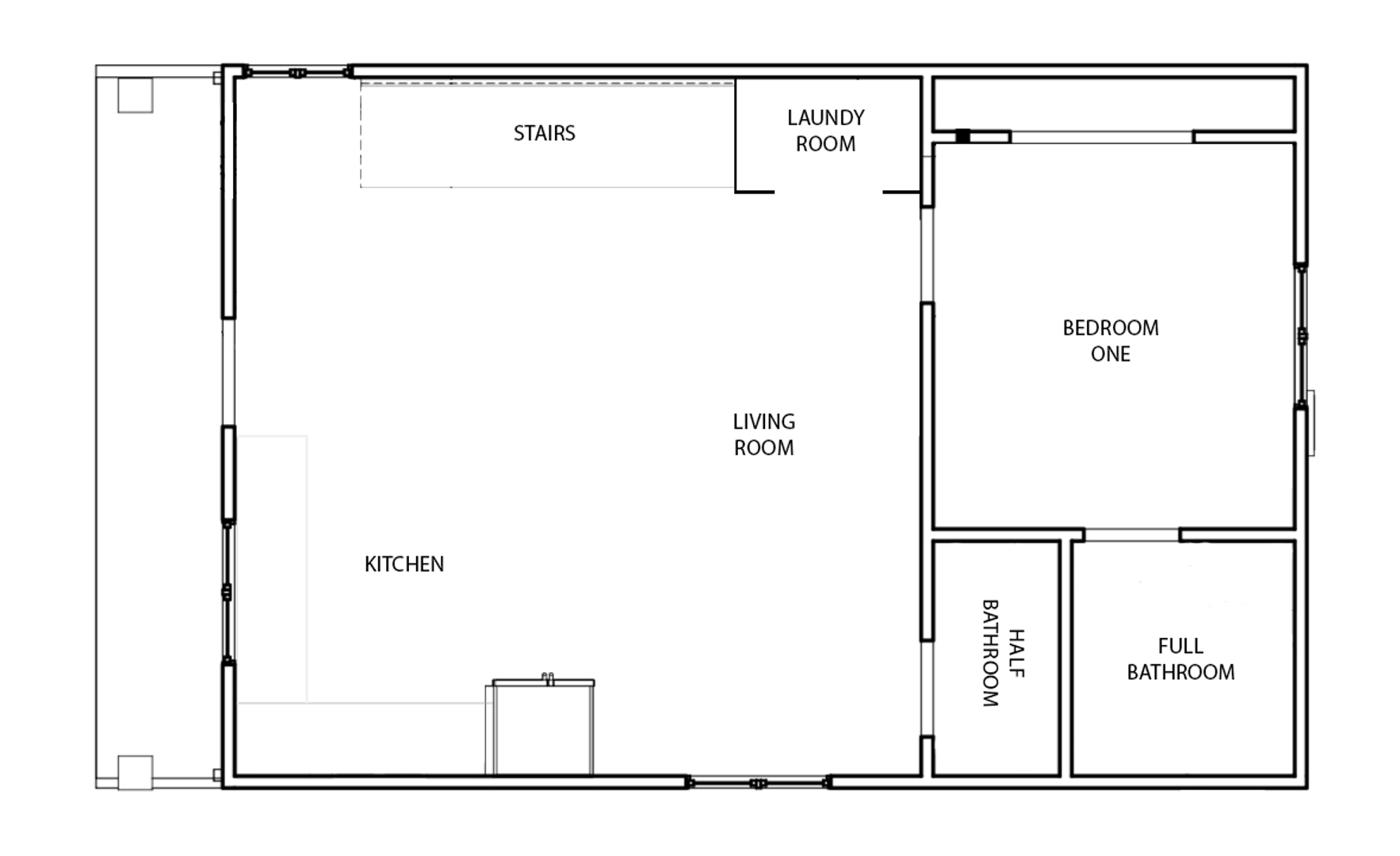
Brand new construction 3 bed and 3.5 bath.
Step into a bright, open-concept living area that blends seamlessly with a modern kitchen, complete with quartz waterfall countertops, sleek European cabinets, and energy-efficient stainless-steel appliances. The home also includes 8mm LVP flooring throughout house, porcelain tiles in every bathroom, LED lighting, water conserving plumbing fixtures, and solar panels for lower utility costs.
Enjoy new concrete surfaces, a private balcony, and two parking spaces right in front. Conveniently located near the 8 and 15 Highways, you will have quick access to numerous convenience stores, restaurants, and some of San Diego's favorite neighborhoods. Pacific Beach, Mission Beach, Point Loma, Downtown, La Jolla, Mission Valley, and North Park are all also easily accessible.
Pet Friendly, pet rent is $50 per pet per month. Pet security deposit is $500 per pet. Lease options are flexible from 6 months to 1 year










































